利达火灾报警控制器尺寸篇
今天给大家介绍一下利达常用的设备相关尺寸
烟感、手报、声光、模块的安装尺寸都是标准的60MM
吸顶广播开孔尺寸建议150MM~170MM之间
标准立柜的尺寸如下图:


CRT机柜尺寸如下图:

标准单双组琴台柜尺寸如下图:

豪华琴台柜尺寸如下图:

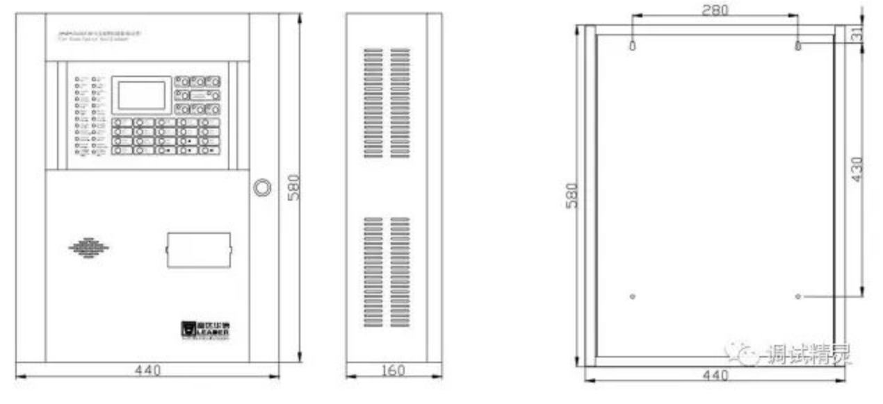
128EN(M)主机尺寸图下图:

128EN(M)—AI气体灭火一体机尺寸:

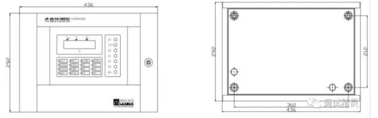
128EM主机尺寸如下图:

壁挂电源尺寸如下图:

128ET尺寸如下图:

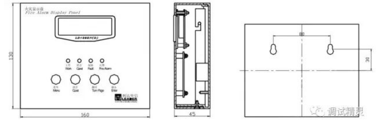
128E(D)尺寸如下图:

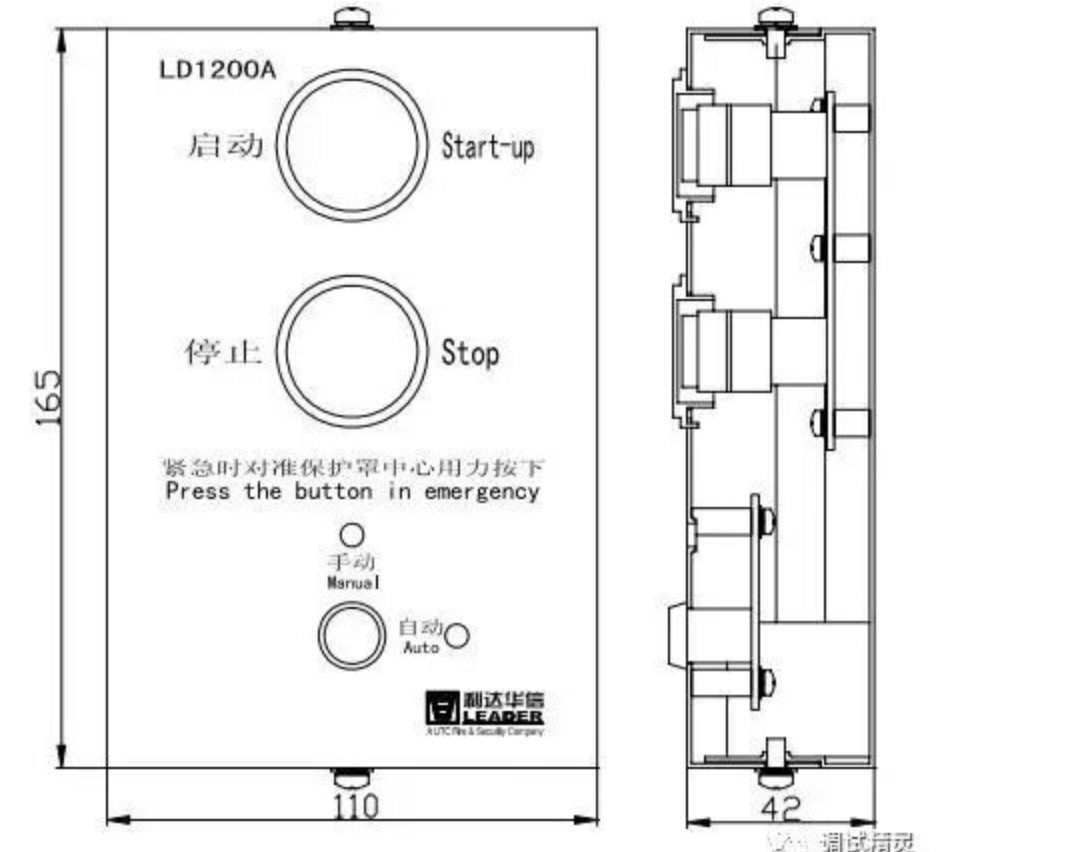
LD1200A启停按钮尺寸如下图:

气体灭火门灯尺寸如下图:

5503气体灭火尺寸如下图:


公司资质
检测报告
检测报告
环境管理体系证书
质量管理体系证书
苏公网安备32058102002152号